
Com a disseminação da norma de segurança NR10, as empresas buscam soluções técnicas, sistemas e produtos que atendam aos mais rigorosos critérios de segurança tornando as instalações elétricas confiáveis para seus colaboradores.
Um dos temas da área elétrica que mais chamam a atenção das empresas são os acidentes com curto circuito ou arco voltaico. Aproximadamente 80% dos acidentes que são relacionados com o curto-circuito tem consequências para a infraestrutura das empresas e físicas para os colaboradores, em alguns casos fatais.
O curto-circuito é um fenômeno físico gerado através da corrente elétrica que em algum momento foi elevada abruptamente devido a diminuição da impedância do sistema tendo como principal consequência a dissipação instantânea de energia em forma de calor e luz.
Segundo dados levantados pela IEC (International Electrotechnical Commission – Comissão Eletrotécnica Internacional) as estatísticas mostram que as principais razões para o curto-circuito são erros humanos, falhas mecânicas, conexões ruins, poluição e animais, porém um fato agravante é que 65% destes acidentes ocorrem com o operador trabalhando no painel com a porta aberta.
Na mesma estatística desenvolvida pela IEC, observa-se que os componentes internos dos quadros também são afetados pelo curto-circuito, pois os cabos se incendeiam em um tempo de aproximadamente 100 ms, tempo próximo da queima das barras de cobre que são em 150ms e o do aço em 200 ms, não sendo possível em 70% dos casos de curto circuito religar os painéis devido ao danos irreversíveis.
A ABB, analisando o problema que se agravava em todo o mundo, identificou a possibilidade de proteger o operador e as instalações de uma forma rápida e desenvolveu o produto TVOC – Monitor de arco.
O TVOC monitora através de sensores ópticos (sendo estes instalados em qualquer parte do painel) a luminosidade gerada pela falha em conjunto com a elevação de corrente do sistema através da unidade de monitoramento. O TVOC identifica a falha em menos de 2ms e interrompe a elevação de corrente do sistema com o desligamento do disjuntor principal, desta forma protegendo os equipamentos e instalações elétricas de danos irreversíveis gerados pelo curto circuito.
O sistema TVOC da ABB pode ser instalado em painéis de baixa e média tensão de todas as marcas. Não existe restrição para o uso do mesmo.

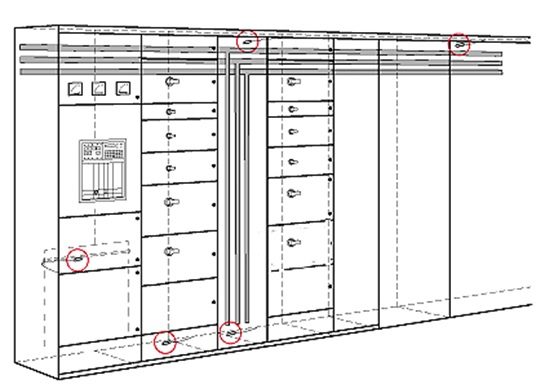
Na foto abaixo, é possível verificar como os sensores ópticos são instalados nos painéis. Neste caso usaremos um painel de baixa tensão como referência.
Mais informações do produto, catálogos, manuais de instalação podem ser baixados no link abaixo:
É possível garantir a proteção dos operadores e infraestrutura?
Certamente.
No APW 2015 teremos o TVOC instalado no painel MNS da ABB simulando a falha gerada por um curto circuito.
Mais informações do produto, catálogos, manuais de instalação podem ser baixados no link abaixo:
É possível garantir a proteção dos operadores e infraestrutura?
Certamente.
No APW 2015 teremos o TVOC instalado no painel MNS da ABB simulando a falha gerada por um curto circuito.
Marcel Serafim
Sou formado em engenharia elétrica e pós graduado em administração industrial. Após a minha primeira passagem na ABB, atuei em mercados diferentes como geração eólica e energia auxiliar (grupos geradores). Com as duas passagens que tive na ABB somam-se 14 anos na ABB. Atualmente sou o Gerente da área de Serviços de Baixa Tensão (serviços em paineis TTA, retrofit em disjuntores, softstarts, qualidade de energia, reforma de equipamentos, comisisonamento e treinamento). Gosto de estar frente a frente com os clientes ouvindo suas idéias, sugestões e reclamações; desta forma posso melhorar continuamente os serviços que a ABB oferece ao mercado e estar um passo a frente dos concorrentes. Tecnologia e novas soluções são grandes inspirações para sempre melhorar e inovar nos serviços ABB.